Противотаранный барьер производства FENSYS представляет собой уникальное устройство контроля въезда транспорта на охраняемую территорию.
ПТУ разработано и используется для решения следующих задач:
- Обеспечение контроля и возможности блокирования проезда транспортных средств, следующих по дорожному полотну (проезда) путем создания непреодолимого препятствия на пути следования транспорта (перекрывания проезда);
- Повышение эффективности физической защиты охраняемых объектов (военные, промышленные, правительственные, социально значимые объекты, объекты повышенной опасности, грузовые терминалы, транспортные коммуникации);
- Обеспечение принудительной остановки транспортного средства массой не более 3,5 тонн, осуществляющего наезд на ПТУ-Л (таран).

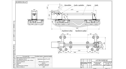
Состав и основные размеры ПТУ-Л
2 ноября 2022 года, на базе площадки ФГУП "НИЦИАМТ НАМИ" были проведены натуральные испытания Противотаранного шлагбаума производства FENSYS.
В ходе проверки, были произведены действия, нацеленные на выявление максимально возможной ударной нагрузки на ПТУ путём наезда транспортного средства на высокой скорости.
Испытания продукции FENSYS проходили в максимально приближенных к реальности условиях, позволили выявить наиболее уязвимые части конструкции и сформировать план по их дальнейшему усилению.

Фото- отчет с испытательной площадки


